
Thi công nhà hàng tại Đức là giai đoạn quyết định việc bản vẽ có trở thành không gian thực tế đúng như kỳ vọng hay không. Tuy nhiên, khi triển khai từ xa, rủi ro sai lệch thiết kế luôn là vấn đề khiến nhiều chủ đầu tư lo lắng. Không ít công trình phải điều chỉnh liên tục trong quá trình thi công, dẫn đến chi phí tăng cao và thời gian kéo dài.
Thực tế cho thấy, vấn đề không nằm ở ý tưởng thiết kế mà nằm ở cách tổ chức triển khai. Khi thiếu sự đồng bộ giữa bản vẽ, vật liệu và thi công, sai lệch gần như là điều không thể tránh khỏi. Đây cũng là lý do Kendesign xây dựng giải pháp thi công trọn gói giúp kiểm soát toàn bộ quá trình từ xa.
Một công trình có thể giữ được đúng thiết kế ban đầu hay không phụ thuộc vào cách kiểm soát ngay từ giai đoạn đầu. Trong đó, ba yếu tố quan trọng nhất là bản vẽ kỹ thuật, vật liệu và quá trình thi công.
.jpg)
Bản vẽ không chỉ cần đẹp mà phải đủ chi tiết để thi công. Nếu thiếu thông tin, đội thi công sẽ phải tự xử lý theo kinh nghiệm, dẫn đến sai lệch. Đồng thời, vật liệu cần được xác định trước để đảm bảo có thể triển khai đúng như thiết kế.
.jpg)
Bên cạnh đó, thi công cần được giám sát liên tục để đảm bảo từng hạng mục được thực hiện chính xác. Khi một trong ba yếu tố này không được kiểm soát, toàn bộ công trình có thể bị ảnh hưởng.
Kendesign tiếp cận thi công nhà hàng tại Đức theo hướng đồng bộ ngay từ đầu, thay vì xử lý từng bước riêng lẻ. Toàn bộ quá trình được xây dựng để đảm bảo thiết kế có thể triển khai thực tế mà không phát sinh sai lệch.
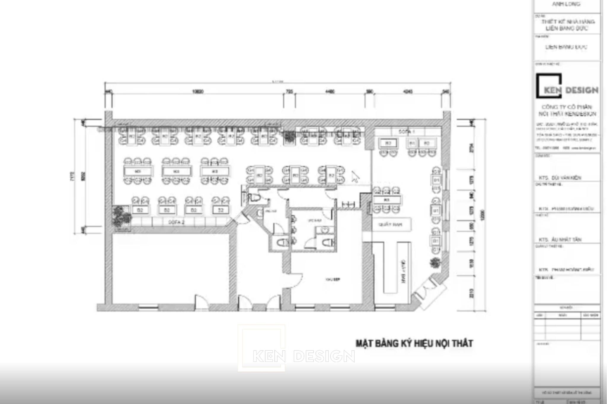
Trước hết là việc phân tích mặt bằng kỹ lưỡng. Dựa trên dữ liệu thực tế, đội ngũ kiến trúc sư đưa ra phương án bố trí phù hợp với tiêu chuẩn tại Đức. Điều này giúp hạn chế việc phải điều chỉnh khi thi công.
.jpg)
Tiếp theo là triển khai hồ sơ kỹ thuật chi tiết. Đây là nền tảng giúp đội thi công thực hiện chính xác từng hạng mục. Mỗi chi tiết đều được mô tả rõ ràng về kích thước, vật liệu và cách lắp đặt.
Một điểm quan trọng trong quy trình là kiểm soát vật liệu. Kendesign chủ động lựa chọn và đề xuất các phương án vật liệu phù hợp với điều kiện tại Đức. Trong nhiều trường hợp, nội thất được gia công tại Việt Nam để đảm bảo chất lượng và giữ được tinh thần thiết kế.
.jpg)
Trong suốt quá trình thi công, Kendesign phối hợp chặt chẽ với đối tác tại Đức để giám sát tiến độ và chất lượng. Các hạng mục được cập nhật liên tục, giúp chủ đầu tư nắm rõ tình trạng công trình mà không cần có mặt trực tiếp.
Chi phí phát sinh là vấn đề phổ biến khi thi công nhà hàng tại nước ngoài. Nguyên nhân chủ yếu đến từ việc thiết kế không gắn liền với thực tế hoặc thiếu kiểm soát trong quá trình triển khai.
Để hạn chế điều này, Kendesign tập trung vào việc tính toán chi phí ngay từ giai đoạn thiết kế. Mỗi hạng mục đều được cân nhắc dựa trên điều kiện thi công thực tế, từ đó giảm thiểu rủi ro phát sinh.
.jpg)
Ngoài ra, việc chuẩn bị vật liệu trước cũng giúp tránh tình trạng phải thay thế bằng phương án khác với chi phí cao hơn. Khi mọi yếu tố đã được kiểm soát từ đầu, tổng chi phí sẽ ổn định và dễ dự đoán hơn.
Kết luận
Thi công nhà hàng tại Đức từ xa hoàn toàn có thể kiểm soát hiệu quả nếu có quy trình rõ ràng và đơn vị triển khai giàu kinh nghiệm. Khi bản vẽ, vật liệu và thi công được đồng bộ, công trình sẽ hạn chế tối đa sai lệch và phát sinh chi phí.
Với kinh nghiệm thực tế trong các dự án quốc tế, Kendesign mang đến giải pháp giúp chủ đầu tư yên tâm triển khai nhà hàng tại Đức, đảm bảo không gian hoàn thiện đúng thiết kế và vận hành hiệu quả ngay từ đầu.